For Sale

122 Ashefield,
Mullingar,
Co. Westmeath
N91 F9H2

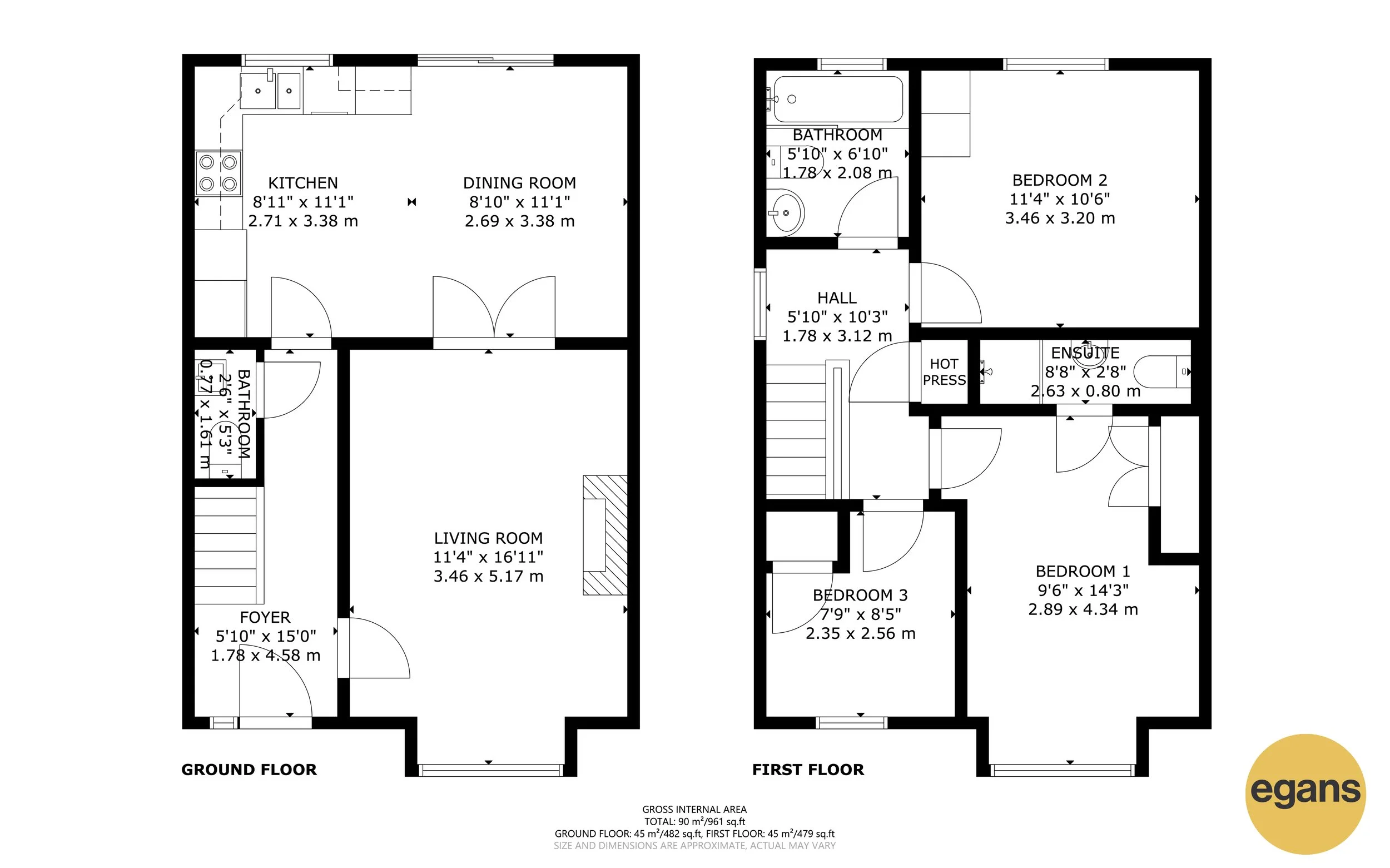
3 Bedroom, 3 Bathroom Semi Detached

Asking Price: €275, 000

 

Egans are delighted to present this beautiful property which is conveniently located in the Ashfield development just a stones throw from Mullingar town centre. The accommodation comprises 3 Bedrooms (1 Ensuite), Kitchen/Dining Room, Sitting Room, Main Bathroom and WC all of which is presented in excellent condition and ready for immediate occupation.

This property has had many upgrades in recent years including a beautiful fitted kitchen, built in solid fuel stove and a fully landscaped garden with patio. The property comes with B3 energy rating and would make an ideal starter home or for those considering downsizing from a larger country home. Ashfield is a convenient location within walking distance to Mullingar town centre, Tesco shopping centre, primary & secondary schools and a range of other services & amenities that Mullingar has to offer.

Viewing is highly recommended.

Features

  • Beautiful 3 Bedroom Property in Great Location

  • Modern Fitted Kitchen

  • B3 Energy Rating

  • Landscaped Garden & Patio

  • OFCH

Talk to John today about this property

Call 044 93 43044
Email hello@eganauctioneers.ie