For Sale

76 Rahanine Manor,
Rochfortbridge,
Co. Westmeath
N91 TX83

4 Bedroom, 3 Bathroom Semi - D

Asking Price:€360,000

 

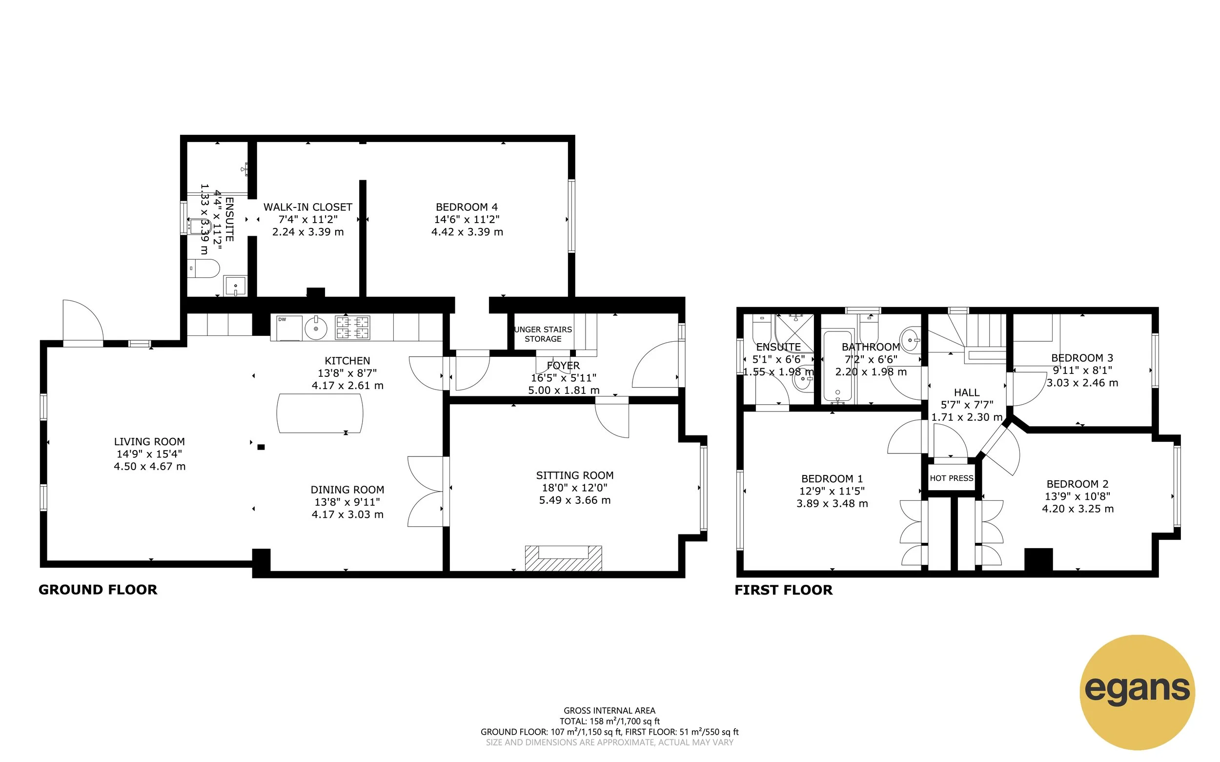
76 Rahanine Manor, Rochfortbridge is a beautifully presented 4-bedroom home (3 upstairs, 1 downstairs ensuite) located in a quiet cul-de-sac, overlooking a well-maintained green area to the front. Inside, the property has been thoughtfully extended and upgraded. Downstairs, the standout feature is the impressive kitchen/dining room extension. This bright, spacious area is enhanced by a Velux roof window that floods the room with natural light. The kitchen includes a gas hob and offers an ideal layout for both cooking and family dining. To the front of the house is a comfortable sitting room with an open fireplace, creating a cosy focal point for the main living space. Also on the ground floor is a modern ensuite bedroom, offering excellent flexibility as a guest room, fourth bedroom, or potential home office.

Upstairs, there are three well-proportioned bedrooms, including a main bedroom with ensuite, along with a separate family bathroom. All bathrooms in the property have been modernised and finished to a contemporary standard. Outside, the rear garden features a decking area perfect for outdoor dining and relaxation, along with a base already in place for a shed if desired.

The property is serviced by oil-fired central heating. As an end house, it benefits from extra privacy and a greater sense of space. With its cul-de-sac location, green outlook, modern finishes and excellent internal layout, 76 Rahanine Manor is an ideal family home in a convenient and peaceful setting. Rochfortbridge is a small but well-serviced village just off the M4 with easy accessibility to Dublin and Galway whilst the midland towns of Mullingar, Athlone and Tullamore are all within a 30 minute drive.

The village has a strong community spirit with both primary and secondary schools and a host of other essential services and amenities to choose from.

Egans highly recommend viewing this stunning home.

Features

  • Stunning 4 Bedroom Family Home

  • Energy Rating B3

  • Large Open Plan Kitchen/Dining Room

  • Finished to a High Standard

  • Quiet Cul de Sac Location

  • Easy access to M4 and M6

Talk to John today about this property

Call John on 087 7602355
Email John at john@eganauctioneers.ie