For Sale

Unit 40, Business Centre,
Stadium Business Park,
Ballycoolin, Dublin 15

Office Space

Asking Price: €490,000

 

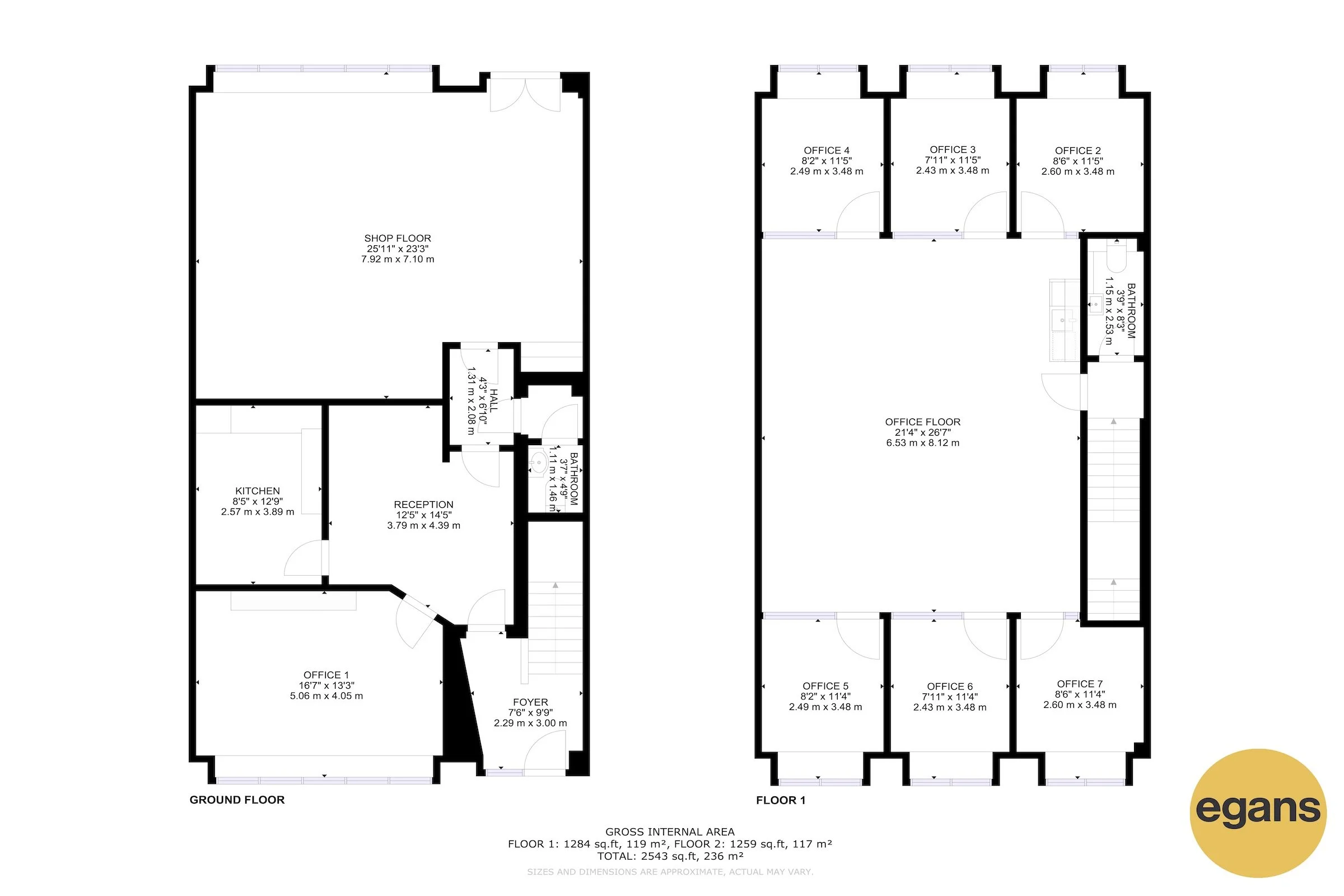
Excellently located in the Stadium Business Park off the Ballycoolin Road enjoying easy access to the M50 and city centre. This unit was fully renovated in 2022 and now provides excellent modern office accommodation on first floor level with additional office accommodation on ground floor level together with warehouse / light industrial space. Unit 40 has the benefit of 10 designated car parking located to the front and rear of the unit. The property is presented to the market in excellent condition throughout and has the benefit of a high spec fit-out together with solar panels installed in the unit making this property an extremely economical unit to run.

The property also has the benefit of a modern fire alarm and the entire unit has just been painted throughout and is ready for immediate occupation. Stadium Business Park is a well-established and popular business park adjacent to Junction 5 on the M50 (North Road / N2) with easy access to M50 (1km), Dublin Airport (9km), Dublin City Centre (8km), the Dublin Port Tunnel and all aerial routes. Occupiers within the surrounding area include Coca-Cola HBC, Dunnes Stores, and GLS.

We are informed that the annual commercial rates are €5,309 per annum and the annual service charge is €1,260 per annum.

Viewing is highly recommended with Egans.

Features

  • Parking

  • Cat 5 Cabling

  • Phone Lines

  • Alarm

  • Toilets

  • Reception

  • Meeting Rooms

  • Kitchen Area

Talk to Aiden today about this property

Call Aiden on 044 93 43044 or 086 3535226
Email
Aiden at aiden@eganauctioneers.ie